CONSTRUCTION BÂTIMENTS ACTIVITÉS ARTISANALES – BORDEAUX
TERTIAIRE
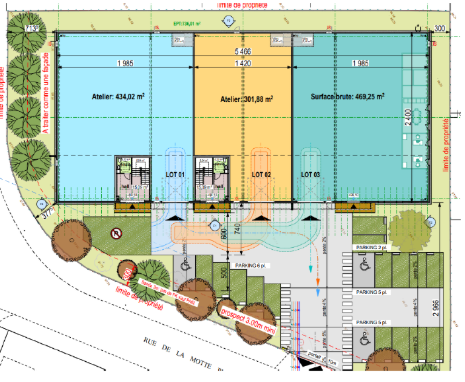
Construction d’un bâtiment d’activités artisanales à Bordeaux
Surface utile : 1 565 m²


Montant des travaux : 2 100 000 € HT
Maître d’ouvrage : CAPSTONE
Architecte : URB1N
Mission de l’opération : Economie, Fluides, Thermique
Année de réalisation des travaux : 2026
Site occupé : non
